50 Floyd Street, #8, Everett, MA 02149
Sold!
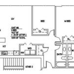
EXCEPTIONAL loft conversion of school house. Beautiful building and common areas. Near Malden / Medford Orange lines and nearby amenities like Station Landing. Great alternative to city prices, easy commute, minutes to downtown Boston, Cambridge, and Somerville. HIGH QUALITY gut renovation, granite, stainless, washer / dryer. Super sunny south facing unit, 2 bedrooms, 2 FULL baths, 2 parking, 12 foot ceilings, exposed brick. Come see this beautiful pet friendly building! There will be no open houses so please call me to arrange a showing.
MLS #71675037
Listing Sheet PDF (2.7 MBs)
Priced at $305,000
Living Area: 1027 sq. ft.
Total Rooms: 4
Bedrooms: 2
Bathrooms: 2 full
Levels in Unit: 1


